Overview
- Aggiornato al:
- 15 Aprile 2026
- 3 Letti
- 2 Bagni
- 154 m2
- Anno2026
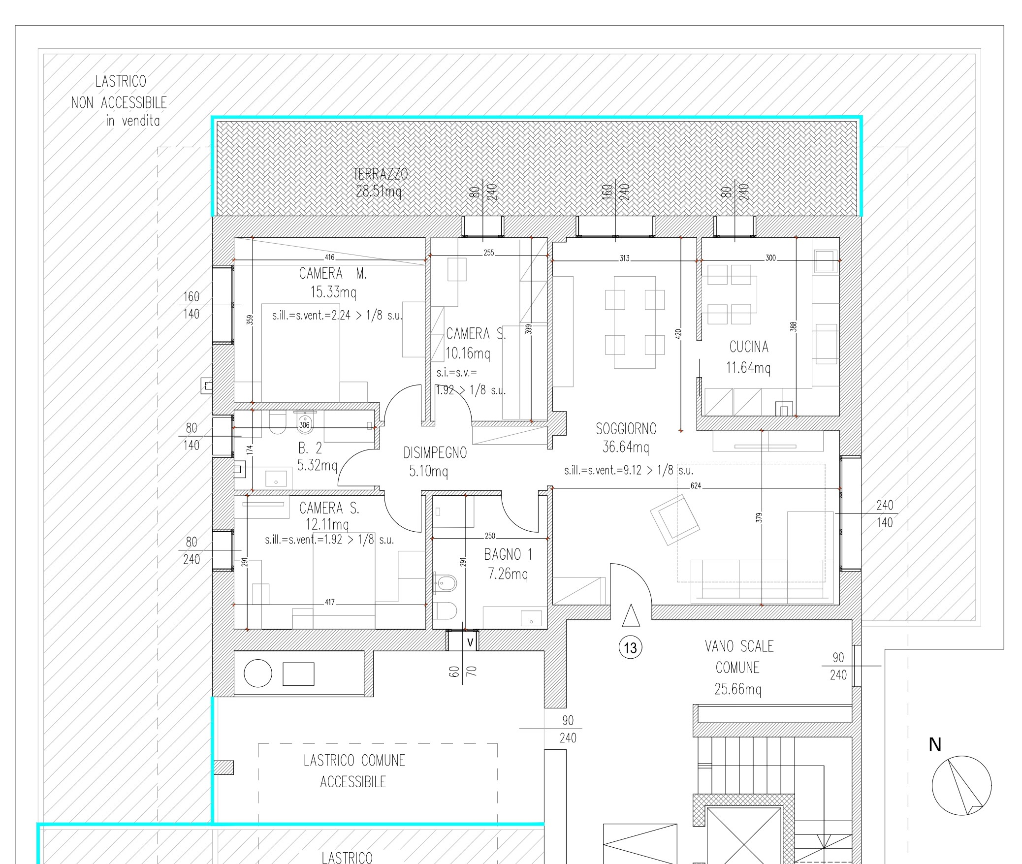
Descrizione
In via Margherita Hack, 1, Crespellano, Valsamoggia, di nuova costruzione situato in una nuova area residenziale, con vista diretta sulle scuole, in una zona verde e comoda per tutti i servizi, proponiamo in vendita uno splendido attico panoramico, formato da 2 bagni finestrati, 3 camere da letto, una cucina spaziosa e un soggiorno che si affacciano sulla ampia terrazza. Pompa di calore sia per il riscaldamento autonomo a pavimento che per la produzione di acqua calda sanitaria e il raffrescamento mediante split ad espansione diretta inclusi. Tapparelle elettriche e zanzariere incluse. Possibilità di personalizzare gli ambienti con pavimenti e rivestimenti secondo capitolato. Ottime finiture.
Garage di mq 18 € 25.000 e posti auti ad € 5.000 cad. Su questo intervento in classe energetica A4 è possibile accedere ad un mutuo green, ovvero un prodotto rivolto a chi acquista case che abbiano già tutte le predisposizioni a norma di legge come abitazioni ecosostenibili e prevede un risparmio considerevole grazie ad un tan più basso.
Le tue informazioni
- Principio e interessi
- Tassa sulla proprietà
- Quota HOA


















